
餐廳
Restaurant Project
Return to Nature is a restaurant that serving prime quality meat. The idea came from Tarzan that he returned to nature as a heroic adventurer. In the restaurant, the customers can have the feeling of jungle in modern way which using shade and shadow to create.
重回自然是一家專賣優質肉餐點的餐酒館。整個餐廳的構想來自於小時候看的迪士尼電影--泰山,以他從都市中回歸叢林的故事帶入空間設計當中,在餐廳裡,您可以沉靜於都市叢林的氛圍當中。三層樓都將叢林裡的太陽及樹蔭溶入用餐環境裡,歡迎您一同參與都市叢林的冒險旅途(*´ω`)人(´ω`*)

Facade Design
外觀設計
Using concrete and net as the main materials to present Tarzan's rough and how in live in the forest. Green is the color to let people think of tree or forest. And also using slope to show how Tarzan slide in forest.
利用水泥及鐵網作為主要的材質去展現出泰山的粗曠以及他是怎麼在

First Floor Plan
1F平面圖
Using different floor materials to separate the area and different floor level.
利用不同的地板材質去區分用餐區域及不同的地板高低差。

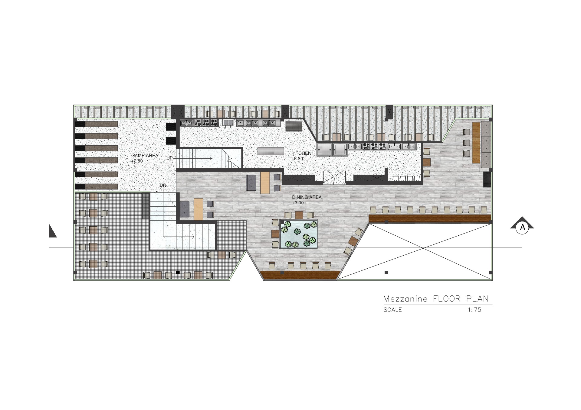
Mezzanine Floor Plan
樓中樓平面圖
Mezzanine floor has game area for people to have fun with friends, and also has seating for single customers.
樓中樓有飛鏢機給客人在吃飯閒暇之餘可以活動活動身體,跟朋友一起玩樂。樓中樓也有靠窗的座位給隻身前來的客人:)

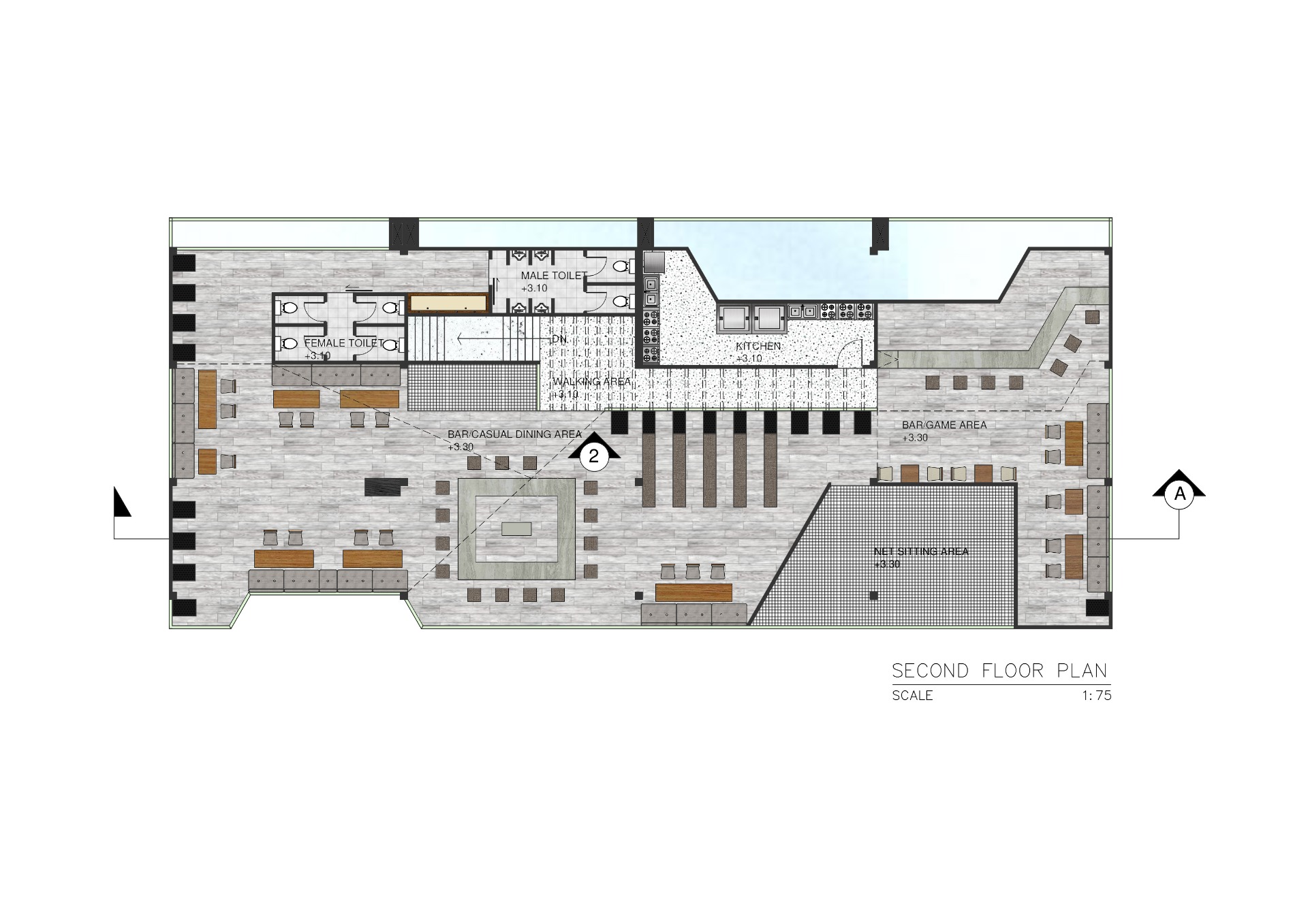
Second Floor Plan
2F平面圖
Second floor focusing on play and fun, there are net area, dart machine and game machine for customers to enjoy their time. And also has bar casual dining area for people to have a drink and chit chat with friends.
二樓著重於玩樂,有網子遊戲區、飛鏢機及遊戲機讓客人享受在重活自然中的時光。二樓還有酒吧區讓客人可以小酌一下,遠離城市中的喧嘩。

Section
剖面圖

Elevation
立面圖

