畢業製作
Thesis project
The Invisible Dangers is the experience center for Thai people and students or who concerned about silent threats that offers special exhibition and workshop activities in order to make people awareness about danger that might lead to behavior change. To have this experience center, the reason is educating about silent threats around us and using interactive design to experience people. The brand personality can be described as excitement.
看不見的危險是一個讓泰國學生或一些關心環境議題的人讀體驗中心,裡面有許多不同主題的展覽,為的是讓民眾可以藉由有趣、好玩的學習方式去提高環保意識。讓大家能在體驗及玩樂中學習。
Using eye as the inspiration, combining the objects that can present existing danger. Curve line as parasite, the dots as noise, PM2.5 and light.
以我們的靈魂之窗-眼睛為中心,將能代表現有危害的物件放入眼球內,代表著當您踏入這個體驗中心,將能看見那些肉眼看不見的危險。
Try to make the exhibition be more unique, I had set up a story line that can help to control the movement of emotion. The exhibition will separate into 3 parts. Start with introduction part, people can easily grasp the existing environmental problems around the world. Then, the positive part will be air pollution, light pollution and raising sea level. This part as positive because these problems are danger and affected our health, but we can't live without air, light and water. Lastly, noise and parasite as negative because they can't bring any benefit for our health.
為了讓展覽獨特一點,我希望在參觀的過程中能讓民眾的心情有高低起伏,所以我將其分為三大部分。由介紹世界各地現有的災害為起點,讓民眾能很輕鬆的掌握消息;將空氣汙染、光害還有海平面上升設為「正向」,儘管這些問題會帶來一定的危害,但是空氣、光及水是我們想要生存下去那不可或缺的要素。而噪音汙染還有寄生蟲則為「負」的,因為沒有噪音和寄生蟲,我們可以更健康、快樂的生存。
Concept Diagram

Transferring positive and negative into shapes and using that idea to design the interior space.
Using Invisible Dangers as the inspiration of concept, based on positive and negative feeling. First of all, the design space will follow the sequence of story line in order to deliver the idea of positive and negative. Secondly, the elements separate into 2 different parts that using geometric form to present positive and organic shape to be negative. Lastly, the whole ideas are related to the branding that Invisible Dangers can raise people's awareness and make them concerned about the dangerous in a fun and interesting way.
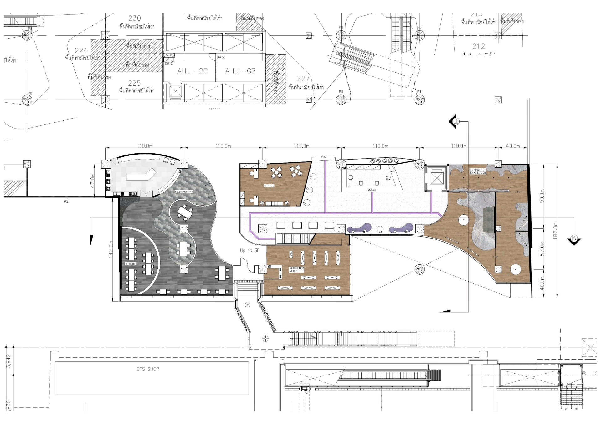
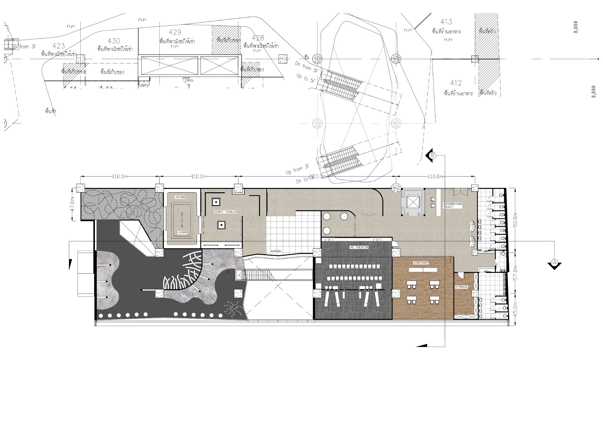
Furniture layout plan
1F

2F

3F

4F

Section


Elevation

